17021 Alassio (SV) Via San G. Bosco, 39 – 17024 Finale Ligure (SV) P.zza Oberdan, 9 – 20122 Milano Via F. Cavallotti, 15 – 10122 Torino Via P. Micca, 12
Centralino: +39 011 2642061 r.a. – Mobile: +39 347 4591800 – Email: info@gruppocogeim.com
Comodi al centro e al mare.
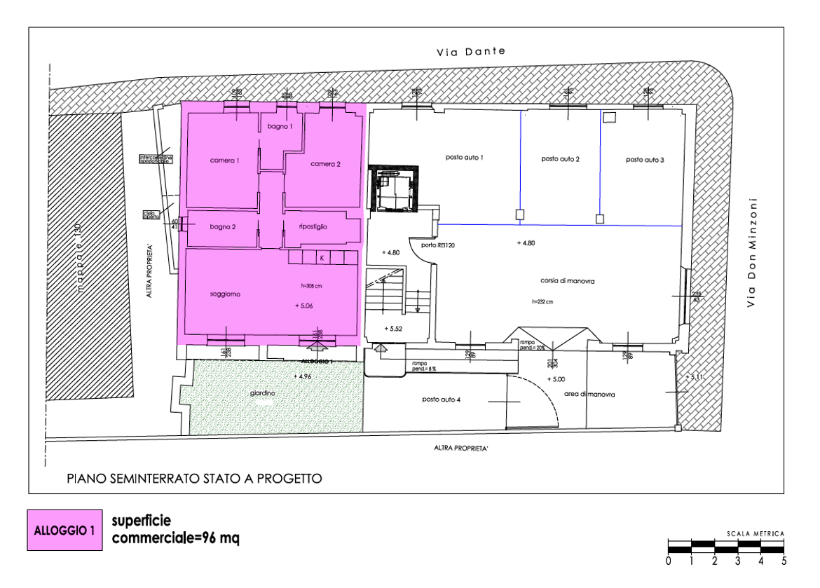
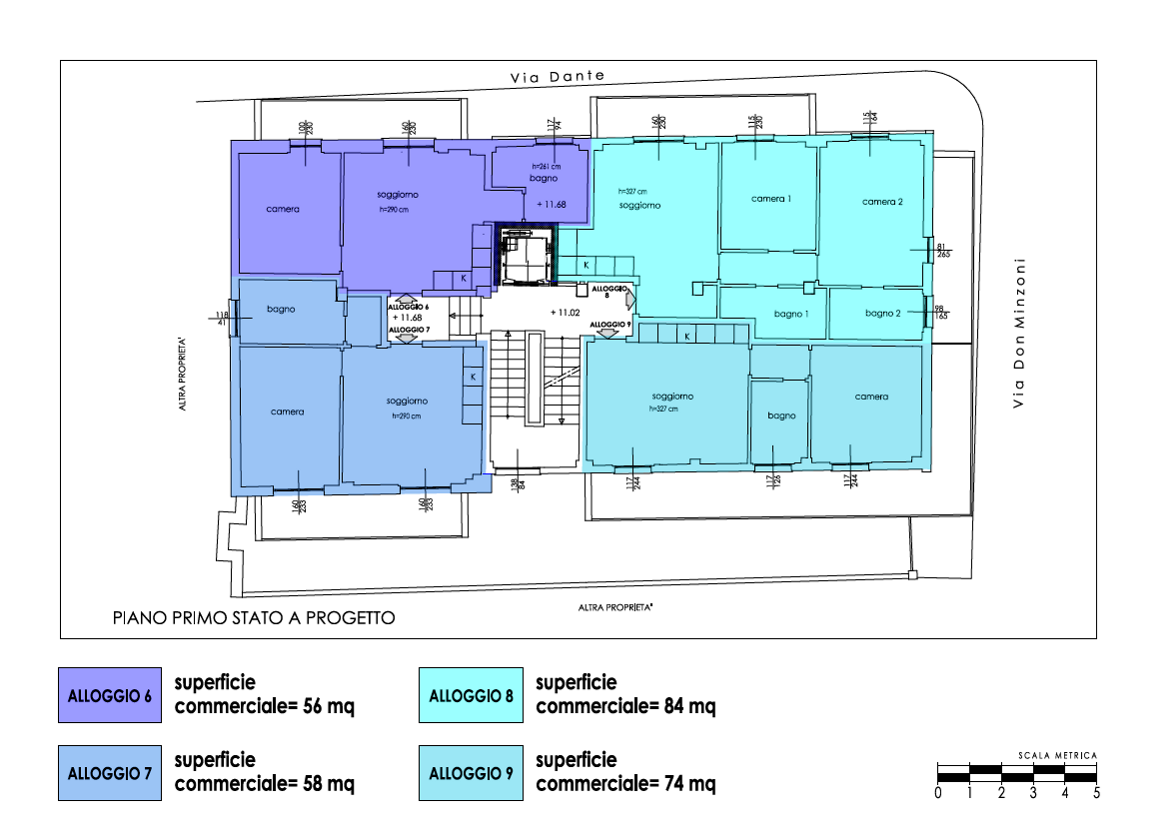
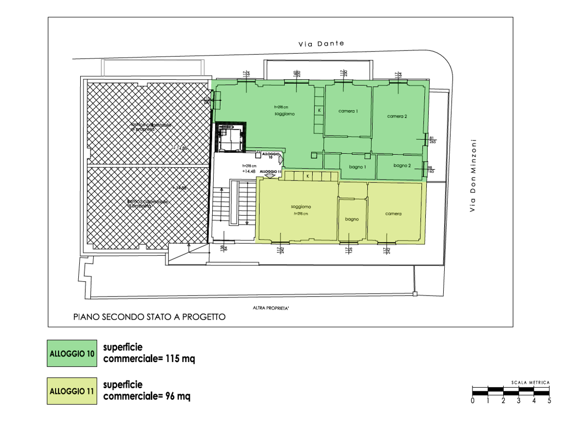
In Palazzina in Classe Energetica elevata e completamente ristrutturata, sia internamente che esternamente, proponiamo Nuovi Bilocali e Trilocali di diverse metrature con balconi e posti auto.
Possibilità di accedere ai bonus fiscali.






17021 Alassio (SV) Via San G. Bosco, 39 – 17024 Finale Ligure (SV) P.zza Oberdan, 9 – 20122 Milano Via F. Cavallotti, 15 – 10122 Torino Via P. Micca, 12
Centralino: +39 011 2642061 r.a. – Mobile: +39 347 4591800 – Email: info@gruppocogeim.com